top of page
Ospitalità G584/16 (Hotel Room Concept)
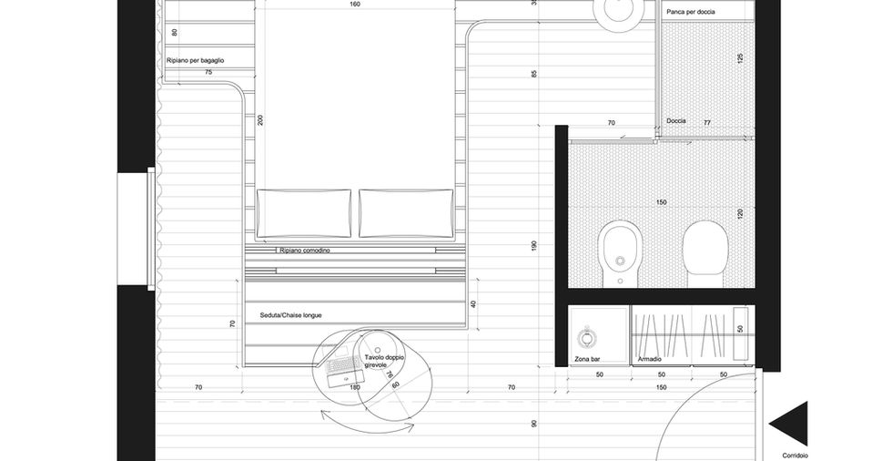
CONCEPT DI CAMERA D'ALBERGO
Best Western - Hotels & Resort
ROOM BREND STANDARD
Le camere devono avere un design ben definito e coordinato e garantire ampio spazio di movimento.
- lluminazione generale e luci di lettura a letto;
- Letto 160 cm x 190 cm con cuscini e piumino;
- armadio/guardaoba con barra porta abiti,
- scrivania;
- Sedute con schienale;
- ripiano posa bagagli;
- Tende da giorno e tende oscuranti;
- specchio a figura intera;
- TV 32'';
- frigobar
- spazio/ripiano bollitore;
- cassetta di sicurezza.
WC BREND STANDARD
- Doccia;
- wc e bidet;
- lavabo con specchio e luce dedicata;
- ripiano e accessori bagno.
CONCORSO DI PROGETTAZIONE
arch. Gabriele Nizzi
arch. Diego Astuto
arch. Daniela Landi
presso STUDIO MONTANARI & PARTNERS SRL
bottom of page










